Select Page

Call Us At

1-253-686-2552

E-Mail Us

ringlerre@gmail.com

Follow Us On

Welcome to Tacoma

YOUR Dream Investment OPPORTUNITY Awaits

$900,000

listing price

2,652 Square Feet
5.6 Acres
20-30 Potential Lots
Power On Site

Embrace Opportunity

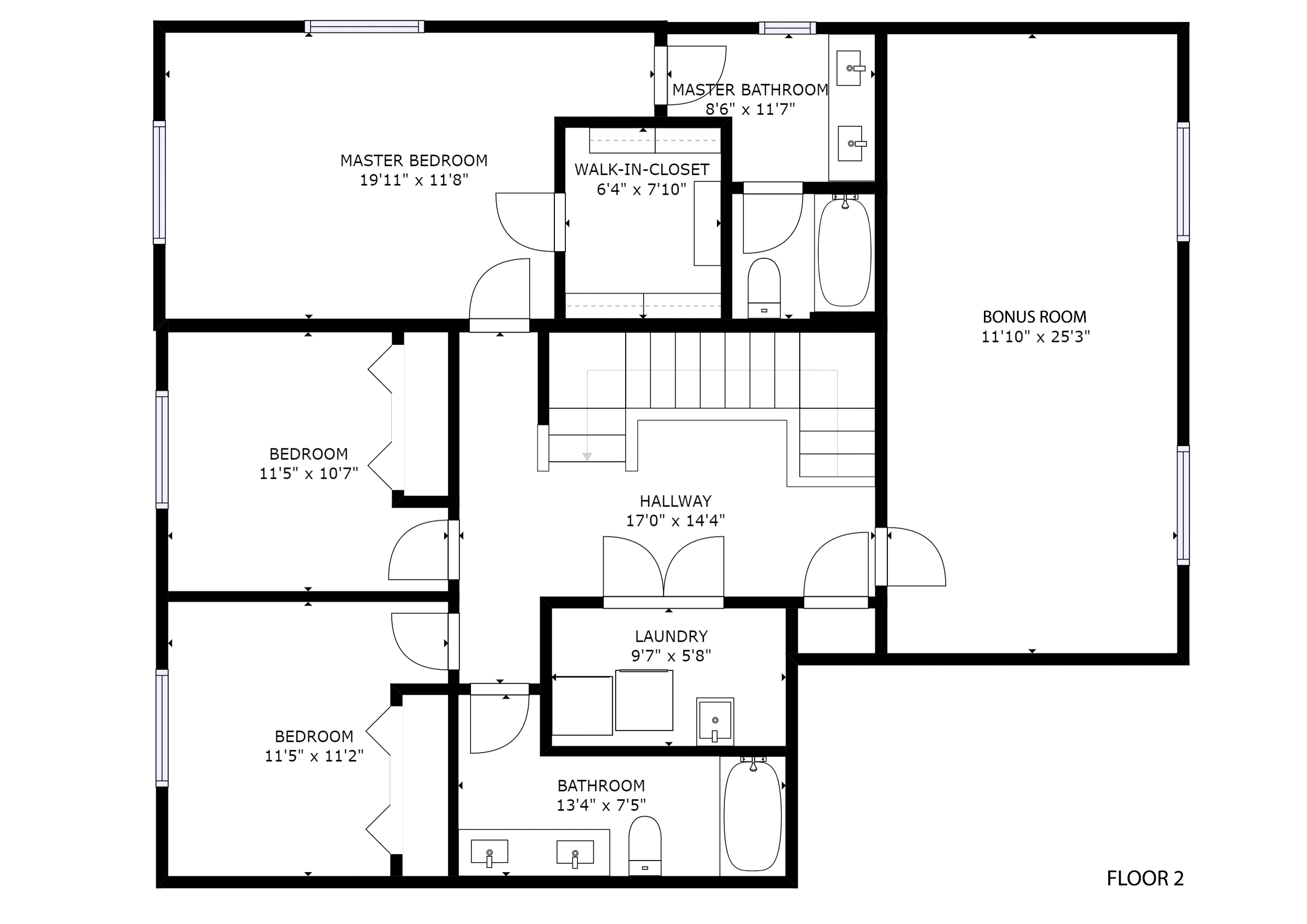
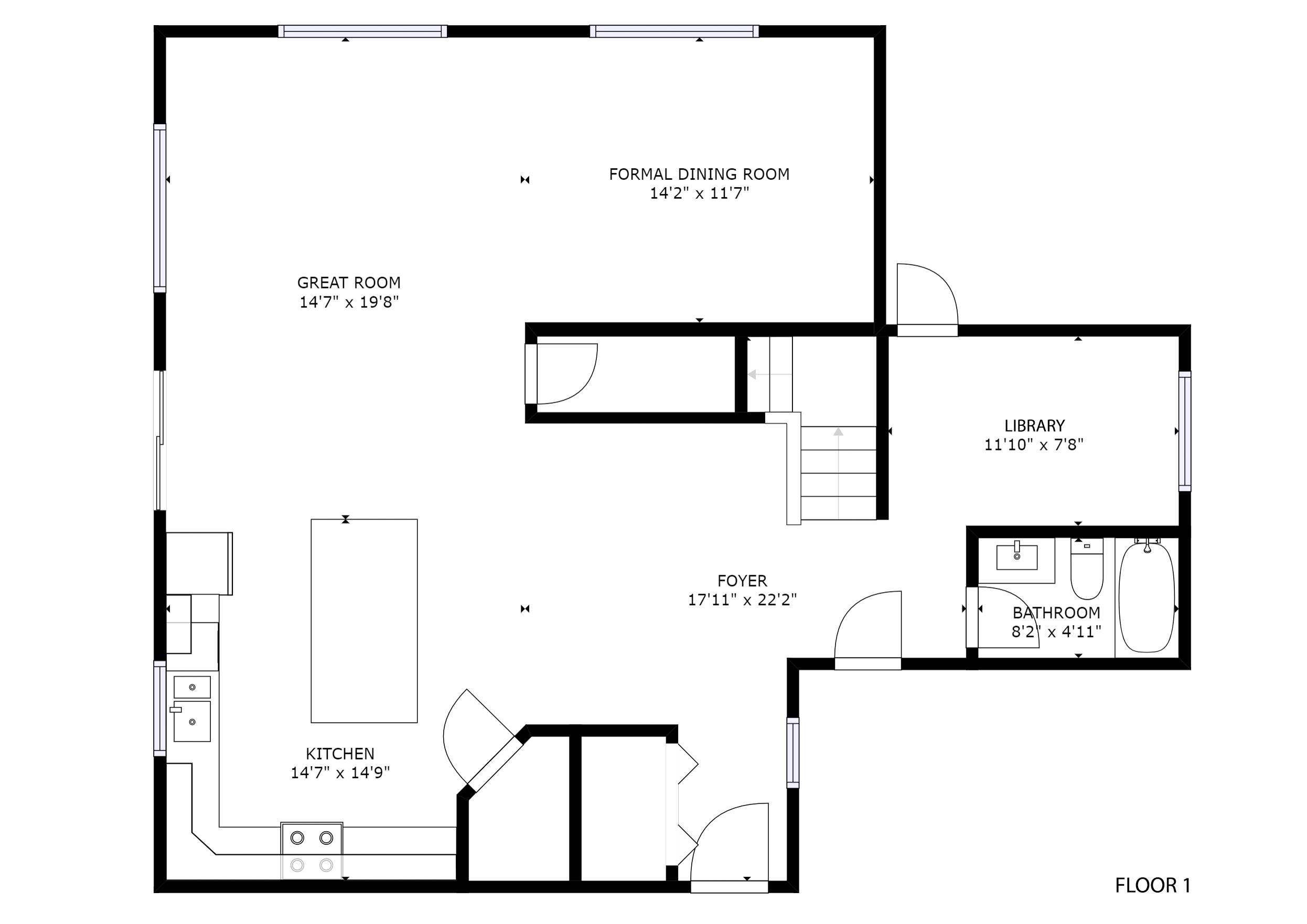
Great development opportunity! Potential for 20-30 home lots on this close in 5.6 acre lot. Beautiful 2,652 sq ft home on front lot and several storage buildings on property. Existing home has high ceilings & open concept that draw you in to the large custom kitchen with spacious bar. You will love checking on your raised garden from the kitchen farm sink. A large family room, dining room, library nook, office and full bathroom complete the main floor. At the top of the stairs there is a built in desk perfect for getting homework done. The tranquil master includes large en-suite and walk-in closet with custom organizer. 2 guest rooms, spacious bonus rm & third full bath complete the upper level. Build 20+ more just like for a great investment!

Location

15809 22nd Ave E
Tacoma, WA 98445

Contact us

(253) 686-2552
ringlerre@gmail.com

Listed By:

David Ringler

&

Kelly Ringler Flores

Tacoma Dream Investment

Additional Features

 

5.6 Acres Zoned MSF

Soil Logs Show Property As "Type 1" Soil

Phase 1 Of Wetland Review Has Been Completed

Potential For 20-30 Building Lots

Sewer Available

Contact Listing Brokers For More Details

Tacoma Dream Investment

Photo Gallery

 

Call Us At

1-253-686-2552

E-Mail Us

ringlerre@gmail.com

Follow Us On